Skip links
Office & Commercial Spaces Available for Rent in Hulhumale'

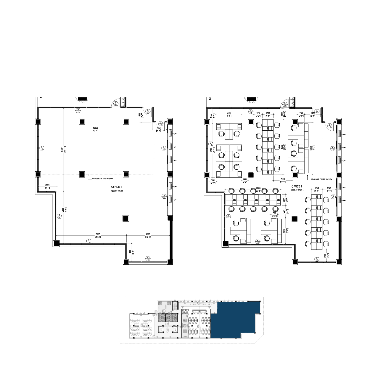
OFS-201 | Office Space

OFS-201 | Office Space

Rainbow Tower, Hulhumale' Phase 1

To schedule a visit or to request additional information, please contact us on +960 738-6367.

Location

This website uses cookies to improve your web experience.